Verkocht onder voorbehoud:Krakelingweg 87, 3707 HS Zeist - Foto
Verkocht onder voorbehoud
+81

Krakelingweg 87 3707 HS Zeist € 1.195.000,- k.k.

  • 5 kamers
  • 3 slaapkamers
  • 2 badkamers
  • Bouwjaar 1929
  • 872 m² perceeloppervlakte
  • 166 m² gebruiksoppervlakte
  • Gestoffeerd
  • C Energielabel C

Beschrijving

Wonen direct aan het bos, op een uitzonderlijk perceel van 872 m².

Aan de rand van het geliefde Lyceumkwartier, direct grenzend aan het Zeisterbos, ligt deze sfeervolle en levensloopbestendige twee-onder-een-kap woning op een perceel van 872 m². Een zeldzaam aanbod wat wij u graag laten zien!

De fraaie, diepe achtertuin vormt een natuurlijk verlengstuk van de karakteristieke jaren '30 woning en biedt optimale privacy en is vanwege de diepte de gehele dag zonnig, zelfs tot in de avonduren. Hier ervaart u een unieke woonbeleving: vanuit uw eigen tuin loopt u DIRECT het bos in, oude bomen, schilderachtige paden, heide en lange wandelroutes, allemaal in uw achtertuin. De Krakelingweg speelt in deze bostuin geen rol, u hoort hier vooral vogels en de geluiden van de natuur. Een ideale omgeving voor wie houdt van wandelen, tuinieren, dieren en het buitenleven in optima forma.

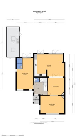
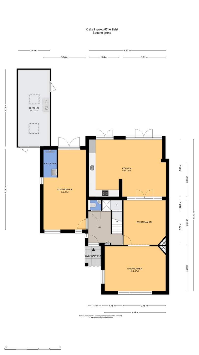
Gelijkvloers wonen
De woning is de afgelopen jaren met zorg gemoderniseerd, uitgebouwd en verduurzaamd. In 2025 is een hoogwaardige uitbouw gerealiseerd met een comfortabele slaapkamer en een moderne badkamer op de begane grond, waardoor gelijkvloers wonen mogelijk is. Ook hier zien we weer openslaande deuren naar de tuin. Deze multifunctionele ruimte kan ook als praktijk aan huis of kantoor worden gebruikt. De leefruimtes kenmerken zich door sfeer en licht. De visgraat PVC-vloer met vloerverwarming (2025) versterkt het stijlvolle karakter van het geheel. Zonnepanelen dragen bij aan een toekomstbestendig en energiezuinig wooncomfort.

Living en woonkeuken
Via de hal met karakteristieke granito vloer betreedt u de sfeervolle living. Dankzij het grote raam aan de voorzijde geniet u hier van veel natuurlijk licht en een fraai, groen uitzicht op de voortuin en de rustige parallelweg. De aanwezige bibliotheek vormt een charmante plek voor uw boeken. Via de karakteristieke deuren komt u in de woonkeuken. Deze ruimte biedt een prachtig uitzicht op de bostuin en staat in directe verbinding met het terras via dubbele openslaande deuren, een heerlijke plek om binnen en buiten te laten samenkomen. De keuken is uitgerust met een Bosch koelkast en vaatwasser, en een stijlvol SMEG fornuis met oven en inductiekookplaat (2025). Een echte leefkeuken, de centrale plek in huis.

Verdieping
Op de 1e verdieping van de woning bevinden zich twee slaapkamers, beide goed van formaat en geschikt als hoofdslaapkamer, logeerkamer of werkruimte. Er zijn in 2023 dakkapellen geplaatst welke veel extra ruimte geven. De slaapkamer aan de achterzijde heeft een balkon met uitzicht op het bos heeft openslaande deuren. Tevens is er een inbouw kastenwand. De ruime en hoge badkamer is centraal gelegen en praktisch ingericht met bad en inloopdouche. Er is een separaat toilet. Op de 2e verdieping is veel extra bergruimte aanwezig, handig voor het opbergen van spullen.

Ideale ligging
De ligging combineert rust en groen met uitstekende bereikbaarheid: het centrum van Zeist, diverse sportfaciliteiten zijn letterlijk om de hoek: golf, hockey, tennis, padel en de manege. Het ziekenhuis, scholen en de uitvalswegen richting Utrecht en de Randstad bevinden zich op zeer korte afstand. Het UMC ligt op 10 km afstand, centrum van Utrecht en Amersfoort zijn zeer goed bereikbaar.

Uniek aanbod
Een bijzonder en zeldzaam aanbod voor wie exclusief wil wonen met het bos als achtertuin, comfort, privacy en natuur als vanzelfsprekend onderdeel van het dagelijks leven. Dit is een smaakvolle woning die u moet ervaren, daarom nodigen wij u van harte uit en laat u verrassen tijdens een bezichtiging!

Informatie
- bouwjaar: 1929
- voorzien van 10 zonnepanelen (2025)
- nieuwe uitbouw, slaapkamer en badkamer op de begane grond (2025)
- zonnige, diepe achtertuin met meerdere terrassen
- stenen berging 19 m², schuur en fietsenstalling
- jacuzzi in de tuin
- 3 slaapkamers, 2 badkamers, 2 toiletten
- dakkapellen (2023)
- vloerisolatie, vloerverwarming gehele begane grond (2025)
- aanvaarding: in overleg
- download de uitgebreide brochure.

Wat de bewoners vertellen:
“Wij hebben hier jarenlang met het gezin heel fijn gewoond. Vooral de directe verbinding met het bos maakte deze plek bijzonder: wandelingen maken vanuit de tuin, het geluid van de uil in de avond en een heldere sterrenhemel. Tegelijkertijd waren voorzieningen zoals winkels, school en hockey altijd dichtbij. Veel avonden werden doorgebracht in de tuin bij het haardvuur, dat gaan wij zeker missen”.

Kaart

Kenmerken

Overdracht

Referentienummer
00427
Vraagprijs
€ 1.195.000,- k.k.
Inrichting
Ja
Inrichting
Gestoffeerd
Status
Verkocht onder voorbehoud
Aanvaarding
In overleg
Aangeboden sinds
Zaterdag 4 april 2026
Laatste wijziging
Donderdag 23 april 2026

Bouw

Type object
Woonhuis, herenhuis, twee onder een kap woning
Soort bouw
Bestaande bouw
Toegankelijkheid
Senioren
Bouwperiode
1929
Dakbedekking
Dakpannen
Type dak
Zadeldak
Isolatievormen
Dakisolatie
Dubbel glas
HR-glas
Spouwmuren
Vloerisolatie

Oppervlaktes en inhoud

Perceeloppervlakte
872 m²
Woonoppervlakte
166 m²
Woonkameroppervlakte
36,49 m²
Keukenoppervlakte
34,76 m²
Inhoud
728 m³
Oppervlakte overige inpandige ruimten
29,6 m²
Oppervlakte externe bergruimte
10,3 m²
Oppervlakte gebouwgebonden buitenruimte
8,1 m²
Balkonoppervlakte
8,1 m²

Indeling

Aantal bouwlagen
3
Aantal kamers
5 (waarvan 3 slaapkamers)
Aantal badkamers
2 (en 2 aparte toiletten)

Locatie

Ligging
Aan bosrand
In bosrijke omgeving
Nabij school
Vrij uitzicht

Tuin

Type
Achtertuin
Oriëntering
Noord-oost
Heeft een achterom
Ja
Staat
Goed onderhouden
Tuin 2 - Type
Voortuin
Tuin 2 - Oriëntering
Zuid-west
Tuin 2 - Heeft een achterom
Ja
Tuin 2 - Staat
Goed onderhouden

Energieverbruik

Energielabel
C

CV ketel

CV ketel
Intergas Kombi Kompakt 36/48A
Warmtebron
Gas
Bouwjaar
2021
Combiketel
Ja
Eigendom
Eigendom

Uitrusting

Aantal parkeerplaatsen
5
Warm water
CV-ketel
Elektrische boiler
Verwarmingssysteem
Centrale verwarming
Open haard
Vloerverwarming (gedeeltelijk)
Ventilatie methode
Mechanische ventilatie
Natuurlijke ventilatie
Badkamervoorzieningen Badkamer 1
Inloopdouche
Wastafelmeubel
Badkamervoorzieningen Badkamer 2
Dubbele wastafel
Inloopdouche
Ligbad
Vloerverwarming
Heeft een balkon
Ja
Heeft een open haard
Ja
Heeft een rookkanaal
Ja
Glasvezelaansluiting aanwezig
Ja
Tuin aanwezig
Ja
Beschikt over een internetverbinding
Ja
Heeft een jacuzzi
Ja
Heeft schuur/berging
Ja
Heeft een dakraam
Ja
Heeft zonnepanelen
Ja
Heeft ventilatie
Ja

Kadastrale gegevens

Kadastrale aanduiding
Zeist C 1191
Perceeloppervlakte
135 m²
Kadastrale aanduiding
Zeist c 1863
Perceeloppervlakte
59 m²
Kadastrale aanduiding
Zeist C 748
Perceeloppervlakte
678 m²
Omvang
Geheel perceel

Brochure(s) en overige bijlagen

Brochure Krakelingweg 87, Zeist (3707HS).pdf Download